空き家コンシェルジュ

メールでお問合せ

特定非営利活動法人 空き家コンシェルジュ

空き家の管理、賃貸、売買、活用など、奈良の空き家ならなんでもご相談ください!

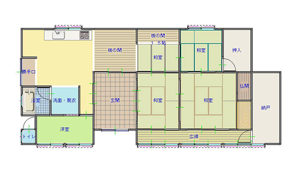
空き家コンシェルジュ > 空き家バンク > 東部 > 宇陀市 > 908 > 06

お知らせ

06

2025/08/04

一覧へ戻る

無料相談 メールでのお問合せはこちら

無料相談 メールでのお問合せはこちら

特定非営利活動法人
空き家コンシェルジュ

橿原事務所

〒634-0075 奈良県橿原市小房町9-32
TEL・FAX 0744-35-6211

桜井事務所

〒633-0062 奈良県桜井市大字粟殿1029-5 吉本ビル2階
TEL 0744-45-5210

山添事務所

〒630-2344 奈良県山辺郡山添村大字大西151番地
TEL・FAX 0743-85-1955

下北山事務所

〒639-3805 奈良県吉野郡下北山村上池原401-1
TEL・FAX 07468-9-0992