▼ MENU
HOME
空き家を所有している方へ
空き家に住みたい・利用したい方へ
空き家バンク
相談会・セミナー スケジュール
その他活動
お問合せ・アクセス
法人概要
事業成果報告
入会・寄付
リンク
サイトマップ
空き家の管理、賃貸、売買、活用など、奈良の空き家ならなんでもご相談ください!
入会・寄付
法人概要
事業成果報告
リンク
サイトマップ
空き家コンシェルジュ
>
空き家バンク
>
南部
>
下市町
>
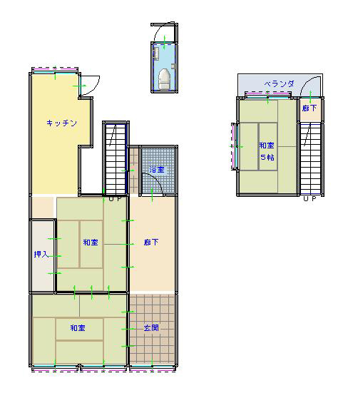
916
>
si82-916-06
お知らせ
si82-916-06
2025/07/23